Красива 2-х кімнатна (62 м2) в ЖК Park Avenue VIP вулиця Деміївська 29 (№ 111-208-466)
Ціна: 1 400 $

Характеристики
Ціна: | 1 400 $ |
---|---|
№ об'єкта: | 111-208-466 |
Кімнат: | 2, студія |
Поверх: | 3 / 22 ліфт |
Площа: | 62 / 35 / 22 м2 |
Додатково: | холодильник, телевізор, меблі, інтернет, кондиціонер, новобудова |
Адреса: Київ, Голосіївський, Демиевская ул., 29, м. Деміївська
Оренда абсолютно нових апартаментів-VIP рівня!
Дизайнерський ремонт 2020 року.
Дуже вражаюча робота відомого дизайнера подарує захоплення від перебування у квартирі.
Все продумано до дрібниць, квартира максимально укомплектована дорогою технікою та меблями, якість реалізації інтер'єру на дуже високому рівні.
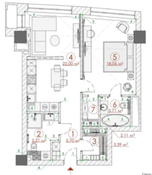
Загальна площа – 62м2, 3/22поверх.
Формат: Кухня з вітальнею, спальна з гардеробом та з санвузлом та загальний санвузол та вбиральня. Стель = 3 м.
Техніка:
- акустична система преміум класу з домашнім кінотеатром,
- вбудована акустика в стелю в основних зонах та в санвузлах,
- Смарт ТБ.
- Ресивер з Bluetooth,
- WiFi.
На кухні техніка Bosch (велика посудомийна машина, варильна поверхня, духова шафа) Вбудований холодильник, кава-машина, кондиціонери Daiken.
Хороший портативний пилосос та професійна праска.
Підігріви підлог.
Багатофункціональний домофон. Сигналізація.
Меблі: високої якості, преміум класу.