Сучасна 4-х кімнатна (150 м2) квартира в ЖК Busov Hill, вулиця Бусловська 12 (№ 111-270-588)
Ціна: 4 500 $

Характеристики
| Ціна: | 4 500 $ |
|---|---|
| № об'єкта: | 111-270-588 |
| Кімнат: | 4, студія |
| Поверх: | 10 / 25 ліфт |
| Площа: | 150 / 100 / 20 м2 |
| Санвузол: | 2 сумісний |
| Балкон: | балкон |
| Додатково: | холодильник, телевізор, меблі, інтернет, кондиціонер, новобудова |
Адреса: Київ, Печерський, Бусловская ул., 12, м. Дружби народів
В оренду пропонуються шикарні 4К апартаменти в одному з найкращих ЖК столиці BUSOV HILL із чудовим видом на Ботанічний Сад.
Адреса: вул. Болсунівська 12.
Квартира знаходиться на завершальній стадії ремонту. На фото представлений актуальний проект від відомого дизайнерського бюро «AR-Design».
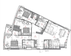
Планування:
- майстер спальня зі своїм санвузлом, гардеробом та балконом;
- 2 спальні з гардеробами та великим санвузлом на дві кімнати;
- кухня-студія з гостьовим санвузлом та гардеробом у передпокої;
- госпблок.



















