2-х кімнатна, Крутий узвіз, 6/2 (№ 111-404-277)
Ціна: 1 200 $

Характеристики
Ціна: | 1 200 $ |
---|---|
№ об'єкта: | 111-404-277 |
Кімнат: | 2, студія |
Поверх: | 6 / 7 ліфт |
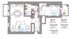
Площа: | 70 / 39 / 11 м2 |
Санвузол: | 1 сумісний |
Балкон: | балкон |
Додатково: | холодильник, телевізор, меблі, пральна машинка, інтернет, кондиціонер |
Адреса: Київ, Печерський, Крутой спуск, 6/2, м. Кловська
2-х кімнатна квартира на Печерську, 70 м2 (кухня студія - 31,5 м2, спальня - 18 м2, суміщений санвузол - 11 м2), 6-й поверх 7-ми поверхового будинку з ліфтом. Висота стелі 3,5 метрів. Тихий центр Києва. Дизайнерський ремонт, вся побутова техніка, кондиціювання, плитка з підігрівом, сигналізація з датчиками руху, балкон та засклена лоджія. Тихий закритий двір із парковкою для машини. Стильна, затишна, світла та функціональна квартира. Поруч Бессарабський ринок, метро Хрещатик, Льва Толстого, магазини, кафе, ресторани, культурно-розважальні заклади, спортивні центри та ін. Є все для зручного проживання.