Дизайнерська 5-К квартира на вул. Богдана Хмельницького 78 (№ 111-504-803)
Ціна: 6 000 $

Характеристики
Ціна: | 6 000 $ |
---|---|
№ об'єкта: | 111-504-803 |
Кімнат: | 5 |
Поверх: | 6 / 7 ліфт |
Площа: | 225 / 150 / 25 м2 |
Санвузол: | 3+ сумісний |
Додатково: | холодильник, телевізор, інтернет, кондиціонер |
Адреса: Київ, Шевченківський, Богдана Хмельницкого ул., 78
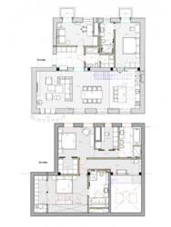
Пропонується в довгострокову оренду 5-кімнатна квартира в Києві, Шевченківський р-н, вулиця Богдана Хмельницького 78.
10 хв до метро Золоті ворота, 225 кв.м, 6/7 пов., з ліфтом, 4 спальні, 3 з/в, історична будівля, якісний ремонт.
Квартира у процесі ремонту. Ремонт та меблювання планують закінчити в лютому 2022 року.