Простора 4-кімнатна (160 м2) квартира на вулиці Богдана Хмельницького, 72В (№ 111-696-478)
Ціна: 2 500 $

Характеристики
Ціна: | 2 500 $ |
---|---|
№ об'єкта: | 111-696-478 |
Кімнат: | 4 |
Поверх: | 2 / 5 |
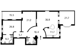
Площа: | 160 / 120 / 35 м2 |
Санвузол: | 2 сумісний |
Додатково: | холодильник, телевізор, меблі, інтернет, кондиціонер |
Адреса: Київ, Шевченківський, Богдана Хмельницкого ул., 72в, м. Університет
Богдана Хмельницького, 72В. Оренда квартири у відреставрованому особняку у центрі столиці всього на 6 квартир. Квартира розташована на 2-му поверсі 4-поверхового будинку без ліфта. У під'їзді воєнізована охорона, будинок закритого типу, камери стеження навколо будинку, парковка. Загальна площа квартири 160 кв.м., кухня-студіо з діючим каміном та окремою столовою зоною, гостьова з/в, головна спальня зі своєю ванною кімнатою та гостьова спальня – дитяча з окремою робочою зоною.