Здається квартира Київ, Подільський, Воздвиженская ул., 29, м. Поштова площа (№ 111-891-366)
Ціна: 2 700 $

Характеристики
| Ціна: | 2 700 $ |
|---|---|
| № об'єкта: | 111-891-366 |
| Кімнат: | 3 |
| Поверх: | 2 / 4 |
| Площа: | 127 / 80 / 25 м2 |
| Санвузол: | 2 сумісний |
| Додатково: | холодильник, телевізор, меблі, інтернет, кондиціонер, новобудова |
Адреса: Київ, Подільський, Воздвиженская ул., 29, м. Поштова площа
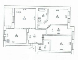
Унікальна квартира, S – 126,8/64,1/17,6 кв. м., розташована на 2-му поверсі в клубному 4-поверховому будинку на Воздвиженці з видом на сад магнолій та Замкову гору. У закритому дворі безліч квітів та дерев. Дуже тихо, можна почути лише спів птахів та шум листя. Чим можна насолодитися на затишних лавках, біля яких романтично горять вуличні ліхтарі. На горі можна засмагати на шезлонгу, спостерігаючи за дитячим майданчиком, на якому грають малюки. На Новий рік можна прикрашати ялинку, яка росте прямо під вікном. На територію двору можна потрапити лише через ворота або хвіртку. Якісне покриття тротуарів тротуарною плиткою. У парадному лише 4 квартири, одна квартира на поверсі. У квартирі після ремонту ніхто не мешкав! Все абсолютно нове! Продається з меблями! Планувальне рішення: просторий хол, вітальня з кухнею-їдальнею має вихід на засклену лоджію, 2 спальні, 2 з/в, вбиральня 12,3 кв. м, яка може бути перепланована на дитячу. Завдяки високим стелям – 3,4 м у квартирі багато повітря, влітку можна не користуватися кондиціонерами. У ремонті застосовані натуральні матеріали, паркет з ясеню, дерев'яні плінтуси 120 мм. Все дуже функціонально: на кухні дуже багато шаф для зберігання, велика душова кабіна, в якій можна приймати душ удвох, кутова ванна з сидінням, вбиральня, на лоджії є розкладний диван

















