Здається квартира Київ, Печерський, Федорова Ивана ул., 2а, м. Олімпійська (№ 111-945-100)
Ціна: 4 000 $

Характеристики
Ціна: | 4 000 $ |
---|---|
№ об'єкта: | 111-945-100 |
Кімнат: | 3 |
Поверх: | 2 / 25 ліфт |
Площа: | 106 / 45 / 25 м2 |
Санвузол: | 2 сумісний |
Балкон: | балкон |
Додатково: | холодильник, телевізор, меблі, інтернет, кондиціонер, новобудова |
Адреса: Київ, Печерський, Федорова Ивана ул., 2а, м. Олімпійська
В оренду пропонується шикарна квартира в ЖК Тетрис Холл.
Квартира розташована у секції Б, другої черги Тетрису (будинок із спортзалом та басейном)
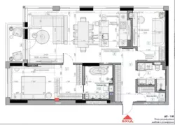
Площа 106 м2
Планування:
- гостьовий санвузол
- простора кухня-вітальня
- Гостьова спальня
- майстер блок із гардеробною та власним санвузлом