Богдана Хмельницького 66 (№ 111-946-710)
Ціна: 3 000 $

Характеристики
Ціна: | 3 000 $ |
---|---|
№ об'єкта: | 111-946-710 |
Кімнат: | 3 |
Поверх: | 2 / 5 ліфт |
Площа: | 80 / 40 / 20 м2 |
Санвузол: | 2 сумісний |
Балкон: | балкон |
Додатково: | холодильник, телевізор, меблі, інтернет, кондиціонер |
Адреса: Київ, Шевченківський, Богдана Хмельницкого ул., 66, м. Університет
Пропонується у довгострокову оренду 3к квартира на вулиці Богдана Хмельницького 66 після свіжого дизайнерського ремонту.
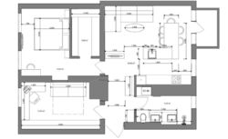
Планування:
- Кухня-Вітальня
- 2 спальні
- Гардеробна
- Санвузол (Душева кабіна)
- Відкритий балкон у двір
В квартирі встановлений блок резервного живдення (UPS system).