Здається квартира Київ, Шевченківський, Малая Житомирская ул., 5, м. Майдан Незалежності (№ 111-946-717)
Ціна: 2 500 $

Характеристики
Ціна: | 2 500 $ |
---|---|
№ об'єкта: | 111-946-717 |
Кімнат: | 2 |
Поверх: | 3 / 6 ліфт |
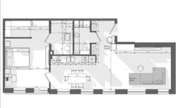
Площа: | 75 / 35 / 20 м2 |
Санвузол: | 2 сумісний |
Балкон: | балкон |
Додатково: | холодильник, телевізор, меблі, інтернет, кондиціонер |
Адреса: Київ, Шевченківський, Малая Житомирская ул., 5, м. Майдан Незалежності
Авторська квартира у царському будинку після реконструкції.
Квартира дуже світла – тільки у вітальні з кухнею 5 вікон.
Стелі 3.5 м дають почуття простору.
Дорогий ремонт робили для себе
Також є паркомісце в закритому дворі.