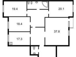
Простора 4-кімнатна квартира (190 м2) по вул. Круглоуніверситетська 3/5. (№ 11-663-497)
Ціна: 4 000 $

Характеристики
Ціна: | 4 000 $ |
---|---|
№ об'єкта: | 11-663-497 |
Кімнат: | 4 розд, студія |
Поверх: | 5 / 25 ліфт |
Площа: | 190 / 110 / 20 м2 |
Санвузол: | 2 сумісний |
Балкон: | балкон |
Додатково: | холодильник, телевізор, меблі, інтернет, кондиціонер, новобудова |
Адреса: Київ, Печерський, Круглоуниверситетская ул., 3/5, м. Хрещатик
Євроремонт, сучасний інтер'єр, 2 балкони, 2 санвузли (ванна, душ, джакузі), підігрів підлоги, вбиральня. Реєстрація. Б/Н
Вітальня: Розкладний Диван
Спальня 1: Двоспальне Ліжко, Особистий Санвузол, Телевізор, Гардеробна, Письмовий Стіл
Спальня 2: Гостьова Спальня
Спальня 3: Гостьова Спальня
Кухня: Їдальня, Посудомийна машина, Електрична Плита
Ванна: 2 Санвузли, Ванна, Підлоги з Підігрівом, Джакузі, Душова Кабінка, Пральна Машина
Балкон: 2 Балкони, Засклений Балкон