Центр! Шикарная 5ком 240кв.м. на Рейтарской,41 (№ 211-195-557)
Ціна: 650 000 $

Адреса: Рейтарская ул., 41, Київ, Шевченківський, м. Золоті ворота
Характеристики
| Ціна: | 650 000 $ |
|---|---|
| № об'єкта: | 211-195-557 |
| Кімнат: | 5 розд |
| Поверх: | 3 / 6 ліфт |
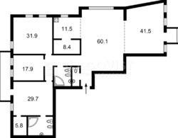
| Площа: | 240 / 190 / 40 м2 |
| Санвузол: | 3+ роздільний + сумісний |
| Балкон: | балкон |
Опис
Клубный дом в историческом центре города по ул.Рейтарская,41. Просторная планировка, кухня с хоз. блоком, гардеробная, шкафы-купе, подземный паркинг, охрана, 2 квартиры на этаже, закрытая охраняемая территория, бассейн, сауна, тренажерный зал, развитая инфраструктура, рядом метро 'Золотые Ворота'
















