Просторная 4-комнатная квартира в царском доме на ул. Рейтарская (№ 211-208-982)

Ціна: 500 000 $
Характеристики
Ціна: | 500 000 $ |
---|---|
№ об'єкта: | 211-208-982 |
Кімнат: | 4 розд |
Поверх: | 2 / 5 ліфт |
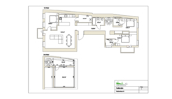
Площа: | 145 / 90 / 20 м2 |
Санвузол: | 3+ роздільний + сумісний |
Балкон: | балкон |
Адреса: Київ, Шевченківський, Рейтарская ул., 9, м. Золоті ворота
Просторная 4-комнатная квартира в царском доме на ул. Рейтарская, 9, продается за $500, 000. Центр Киева, 7 минут пешком к станции метро Золотые Ворота.
Полностью отремонтирована. Терраса 30 кв.м на втором уровне квартиры.
2 спальни с ванными комнатами с душем.
1 спальня или кабинет.
еще 1 ванная комната: ванна.
Открытая кухня: электрическая плита.
Другие детали: бытовая техника, кондиционер, 2 открытых балкона, стиральная машина, сушилка, система фильтрации воды, подогрев пола, высокие потолки 3, 3м.