Ярославов Вал, 19. ЦЕНТР, Золотые Ворота, продажа квартиры (№ 211-212-807)
Ціна: 260 000 $

Адреса: Ярославов вал ул., 19, Київ, Шевченківський, м. Золоті ворота
Характеристики
| Ціна: | 260 000 $ |
|---|---|
| № об'єкта: | 211-212-807 |
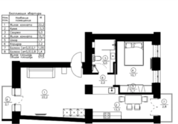
| Кімнат: | 2, студія |
| Поверх: | 4 / 5 ліфт |
| Площа: | 60 / 35 / 20 м2 |
| Санвузол: | 1 сумісний |
| Балкон: | балкон |
Опис
Продажа квартиры в центре города. В квартире полностью сделан ремонт, меблирована. Меблирована, бытовая техника, центральный кондиционер, подогрев пола в с/у, ламинат на полу.












