Трехкомнатная квартира, ул. Мичурина 56/2 (№ 211-276-220)
Ціна: 5 900 000 $

Адреса: Мичурина ул., 56/2, Київ, Печерський
Характеристики
| Ціна: | 5 900 000 $ |
|---|---|
| № об'єкта: | 211-276-220 |
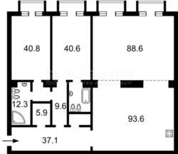
| Кімнат: | 3, студія |
| Поверх: | 4 / 5 ліфт |
| Площа: | 350 / 230 / 40 м2 |
| Санвузол: | 3+ роздільний + сумісний |
| Балкон: | балкон |
Опис
Видовые аппартаменты в клубном доме в самом центре столицы. Круглосуточная охрана. Подземный паркинг. Презентабельная входная группа. Ремонт с использование дорогих и высококачественных материалов. Сусальное золото, мрамор, оникс, черный гранит, натуральное дерево. Двери «Sige Gold», люстри «Preciosa», кухни «Aldo Moletta », итальянская мебель. Каждая спальня со своим с/у. Ткани на стенах «Lincrusta» та «Sangiorgio». Техника Miele. Система кондиционирования Daikin. Гардеробные комнаты.




















