ПОД РЕМОНТ! 3-х комнатная (103 м2) квартира в доме после реконструкции по улице Б. Хмельницкого 30/10 (№ 211-344-497)
Ціна: 350 000 $

Адреса: Богдана Хмельницкого ул., 30/10, Київ, Шевченківський, м. Золоті ворота
Характеристики
| Ціна: | 350 000 $ |
|---|---|
| № об'єкта: | 211-344-497 |
| Кімнат: | 3, студія |
| Поверх: | 3 / 7 ліфт |
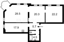
| Площа: | 103 / 60 / 15 м2 |
| Санвузол: | 2 роздільний + сумісний |
| Балкон: | балкон |
Опис
Квартира в центре Киева, дом построен в 1901 году, по заказу купца Н.Н.Самонова и является памятником архитектуры г. Киева, Капитальный ремонт проводился в 1974 году. В 2001 году была проведена реставрация фасадов и выполнена надстройка шестого мансардного и седьмого этажей. В доме подъезд с кодовым замком. Парадное в отличном состоянии с красивой реставрацией лепнины. Новый лифт 'Otis'. Требуется капитальный ремонт.


