Продажа 3к квартиры в ЖК Дельмар (143.3 м2) улица Драгомирова, 4б (№ 211-508-975)
Ціна: 258 000 $

Адреса: Драгомирова Михаила ул., 4б, Київ, Печерський, м. Дружби народів
Характеристики
| Ціна: | 258 000 $ |
|---|---|
| № об'єкта: | 211-508-975 |
| Кімнат: | 3, студія |
| Поверх: | 3 / 24 ліфт |
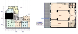
| Площа: | 143 / 100 / 25 м2 |
| Санвузол: | 3+ сумісний |
| Балкон: | тераса |
| Додатково: | новобудова |
Опис
Этаж - 3 (вид на ул. Подвысоцкого)
- Терраса
- Площадь квартиры - 143.3 м.кв
- Цена квартиры - 258 000 $ (1800 $ за м.кв.)
- Есть возможность перевода в коммерческое помещение




