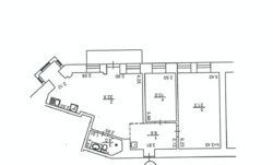
Светлая 3-х комнатная квартира (78 м2) в реконструированном доме по улице Рейтарская 31/16, Золотые Ворота (№ 211-523-227)
Ціна: 240 000 $

Адреса: Рейтарская ул., 31/16, Київ, Шевченківський, м. Золоті ворота
Характеристики
| Ціна: | 240 000 $ |
|---|---|
| № об'єкта: | 211-523-227 |
| Кімнат: | 3, студія |
| Поверх: | 3 / 6 ліфт |
| Площа: | 78 / 45 / 16 м2 |
| Санвузол: | 1 сумісний |
| Балкон: | балкон |






