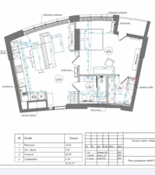
Видовая 2-х комнатная (70 м2) квартира в ЖК Бусов Хилл, улица Бусловская 12 (№ 211-641-655)

Ціна: 320 000 $
Характеристики
Ціна: | 320 000 $ |
---|---|
№ об'єкта: | 211-641-655 |
Кімнат: | 2, студія |
Поверх: | 14 / 24 ліфт |
Площа: | 70 / 40 / 20 м2 |
Санвузол: | 1 сумісний |
Додатково: | новобудова |
Адреса: Київ, Печерський, Бусловская ул., 12, м. Дружби народів
Современный ремонт по авторскому проекту.
Полы с подогревом различные вариации света.