Просторная 5-ти комнатная квартира на Оболонской Набережной 7 (№ 211-774-415)
Ціна: 1 250 000 $

Адреса: Оболонская набережная, 7, Київ, Оболонський, м. Оболонь
Характеристики
| Ціна: | 1 250 000 $ |
|---|---|
| № об'єкта: | 211-774-415 |
| Кімнат: | 5, студія |
| Поверх: | 4 / 5 ліфт |
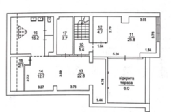
| Площа: | 249 / 180 / 27 м2 |
| Санвузол: | 3+ сумісний |
| Балкон: | тераса |
| Додатково: | новобудова |
Опис
Оболонская набережная 7
двухуровневая квартира с видом на Днепр и парковую зону
Предлагается на продажу квартира в престижном малоквартирном доме расположенном на Оболонской набережной.
В квартире выполнен дизайнерский ремонт высокого уровня (студия Махно). Укомплектована бытовой техникой и мебелью премиум-класса. Мраморные подоконники, панорамные окна (стекла бронированные).
Кухня гостиная
3 отдельные спальни
3 санузла
кабинет с винной комнатой и библиотекой
лаунж зона на террасе



















