Diamond hill продажа квартиры 308м2, Мазепы 11 б (№ 211-900-096)

Ціна: 1 447 600 $
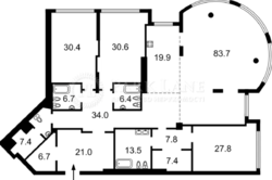
Характеристики
| Ціна: | 1 447 600 $ |
|---|---|
| № об'єкта: | 211-900-096 |
| Кімнат: | 4, студія |
| Поверх: | 9 / 21 ліфт |
| Площа: | 308 / 250 / 35 м2 |
| Додатково: | новобудова |
Адреса: Київ, Печерський, Мазепы Ивана ул., 11б, м. Арсенальна
Элитный жилой комплекс 'Diamond Hill', роскошные апартаменты класса 'De-Luxe'. Из панорамных окон открывается роскошный вид на Днепр, Киево-Печерскую Лавру. Квартира после строителей
ЖК Премиум «Diamond Hill» включает в себя, фитнес-центр, тренажерный зал, СПА зону, круглосуточную охрану. ЖК Премиум «Diamond Hill» является одним из лучших домов Киева на сегодня






