Продаж квартири Золоті ворота, Рейтарська 25 (№ 212-681-547)

Ціна: 123 000 $
Характеристики
| Ціна: | 123 000 $ |
|---|---|
| № об'єкта: | 212-681-547 |
| Кімнат: | 1 |
| Поверх: | 3 / 4 |
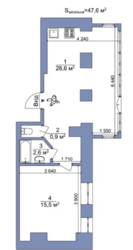
| Площа: | 48 / 20 / 20 м2 |
Адреса: Київ, Шевченківський, Рейтарская ул., 25, м. Золоті ворота
Продається однокімнатна квартира в самому центрі Києва, вул. Рейтарська, 25
Поруч знаходяться Софіївська площа, Львівська площа, станція метро Золоті Ворота.
Красива і затишна, дуже світла вікна виходять у внутрішній тихий двір. Цікаве, нестандартне планування.
Є паркомісце біля будинку.














