Ексклюзивна пропозиція Історичний Центр Новий ремонт ГОРОДЕЦЬКОГО 17/1 (№ 212-710-232)

Ціна: 650 000 $
Характеристики
Ціна: | 650 000 $ |
---|---|
№ об'єкта: | 212-710-232 |
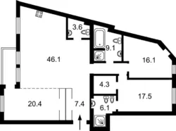
Кімнат: | 4 |
Поверх: | 4 / 7 ліфт |
Площа: | 135 / 80 / 25 м2 |
Санвузол: | 2 сумісний |
Балкон: | балкон |
Адреса: Київ, Печерський, Архитектора Городецкого ул., 17/1, м. Хрещатик
Прибутковий будинок з 1908 року був збудований інженером Всеволодом Демченком поруч з садибою пруського підданого Вільгельма Гессельбейна. Архітектура будинку має завершену стадію модерну і перехід до раціоналізму.
Сучасний ремонт, кухня вітальня, дві повноцінні спальні кімнати, кабінет, три санвузли, балкон на Ольгинську. Мебльована, вся необхідна побутова техніка, кондиціонування, паркетна дошка, сучасне освітлення.