Продається квартира Гоголевская ул., 34, Київ, Шевченківський, м. Лук'янівська (№ 212-833-994)
Ціна: 105 000 $

Адреса: Гоголевская ул., 34, Київ, Шевченківський, м. Лук'янівська
Характеристики
| Ціна: | 105 000 $ |
|---|---|
| № об'єкта: | 212-833-994 |
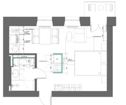
| Кімнат: | 1 |
| Поверх: | 3 / 4 |
| Площа: | 38 / 20 / 8 м2 |
| Санвузол: | 1 сумісний |
| Балкон: | балкон |
Опис
Продается однокомнатная квартира в центре Киева, ул. Гоголевская
Красивая и уютная, очень светлая окна выходят во внутренний тихий двор.
Царский дом 1905 года, высота потолков 4 метра
Дорогой ремонт, встроенная техника, на полу натуральный паркет, столешница из камня, душевая, открытый балкон!




















