Продається квартира Київ, Печерський, Заньковецкой ул., 7, м. Хрещатик (№ 212-963-345)

Ціна: 500 000 $
Характеристики
| Ціна: | 500 000 $ |
|---|---|
| № об'єкта: | 212-963-345 |
| Кімнат: | 3 |
| Поверх: | 4 / 6 |
| Площа: | 83 / 50 / 20 м2 |
| Санвузол: | 2 сумісний |
| Балкон: | балкон |
Адреса: Київ, Печерський, Заньковецкой ул., 7, м. Хрещатик
Ексклюзивна квартира пропонується в історичному будинку розташованому за адресою: вулиця Марії Заньковецької 7.
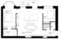
Світла 3 кімнатна квартира загальної площею 83 кв.м. розташована на 4-му поверсі.
- Авторський ремонт 2024 року, абсолютно нова квартира.
- Натуральні оздоблювальні матеріали: мармур, дерево.
- Побутова техніка: Smeg
- Брендові меблі
- Тепла підлога, натуральні молдінгі, система вентиляції Daikin, фільтрація води.
Функціональне планування: велика кухня-вітальня з фасадним відкритим балконом, майстер-спальна кімната з еркером та власним санвузлом, гостьова кімната (кабінет або дитяча), гостьовий санвузол та технічна кімната.
Парадне в гарному стані після косметичного ремонту, гарний ліфт.
Чудова локація для життя, дуже затишна та тиха вулиця, вся необхідна інфраструктура поруч.



















