Здається офіс Софиевская ул., 9, Київ, Шевченківський, м. Майдан Незалежності (№ 1-462-519)
Ціна: 4 200 $

Адреса: Софиевская ул., 9, Київ, Шевченківський, м. Майдан Незалежності
Характеристики
| Ціна: | 4 200 $ |
|---|---|
| № об'єкта: | 1-462-519 |
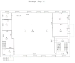
| Тип: | житловий фонд |
| Площа: | 389 м2 |
| Кабінетів: | 8 |
| Поверх: | 6 / 7 |












