Аренда офиса в Eurasia Business Centre (№ 1-466-568)
Ціна: 25 $

Адреса: Жилянская ул., 75, Київ, Голосіївський, м. Олімпійська
Характеристики
| Ціна: | 25 $ |
|---|---|
| № об'єкта: | 1-466-568 |
| Тип: | бізнес центр |
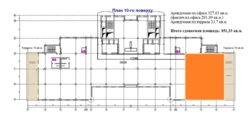
| Площа: | 327 м2 |
| Кабінетів: | 9 |
| Поверх: | 10 / - |
| Додатково: | кондиціонер |
Опис
Коммерческие условия:
Базовая арендная ставка: 25 долл./ кв.м/ мес. без НДС.
ОРЕХ (эксплуатационные расходы): 6 долл./ кв.м/ мес. без НДС.
Коммунальные расходы: оплачиваются арендатором отдельно (электричество,
отопление, водоснабжение и водоотвод, вывоз снега, вывоз мусора).
Телекоммуникации: арендатор заключает прямые договора с поставщиками
телекоммуникационных услуг (интернет, телефония).
Индексация: ежегодная индексация в размере 5%, применимая к базовой
арендной ставке, ОРЕХ, паркинг.
Размер гарантийного депозита: размер 2-месячного арендного платежа















