Офис 60м² на Подоле, ул. Хорива 6 (№ 1-467-611)
Ціна: 1 400 $

Адреса: Хоревая ул., 6, Київ, Подільський, м. Контрактова площа
Характеристики
| Ціна: | 1 400 $ |
|---|---|
| № об'єкта: | 1-467-611 |
| Тип: | окремо стояча будівля |
| Площа: | 60 м2 |
| Кабінетів: | 3 |
| Поверх: | 1 / 3 |
| Додатково: | кондиціонер, парковка |
Опис
Предлагается в аренду офис 60м² на Подоле, в 5 минутах от м. Контрактовая.
Офис расположен на 1 этаже, отдельный вход с улицы. Здание было капитально отремонтировано летом. Теплые, отапливаемые помещения.
Офис готов к заезду.
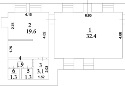
В офисе имеется большой светлый кабинет 32м, два раздельных кабинета 20м, кухня 3м, и два санузла 5м.
Общая площадь - 60 м2
Арендная ставка - $23,5/м2.
1400$ + коммунальные по счетчику.










