БЦ Берегиня, вул. Ігорівська, 12б (№ 1-483-551)
Ціна: 5 300 $

Адреса: Игоревская ул., 12б, Київ, Подільський, м. Поштова площа
Характеристики
| Ціна: | 5 300 $ |
|---|---|
| № об'єкта: | 1-483-551 |
| Тип: | бізнес центр |
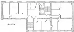
| Площа: | 327 м2 |
| Поверх: | 3 / 7 |
| Додатково: | кондиціонер, парковка |
Опис
Оренда офісного приміщення 327 м2 БЦ Берегиня, вул. Ігорівська, 12б, 3 поверх, метро Поштова площа.
Планування:
кабінетна система з комбінацією OPEN SPACE,
зона для вживання їжі,
2 санвузли,
2 ліфти,
Спеціальна серверна кімната,
доступ 24/7,
дизель генератор,
три парко місця для автомобіля (за додаткову плату),
система кондиціонування та вентиляції.
Вартість оренди 300 грн за кв.м. плюс 150 грн експлуатаційні за кв.м.












