Здається офіс Київ, Шевченківський, Ивана Франко ул., 11, м. Золоті ворота (№ 1-499-746)
Ціна: 4 500 $

Характеристики
Ціна: | 4 500 $ |
---|---|
№ об'єкта: | 1-499-746 |
Тип: | нежиле приміщення в житловому будинку |
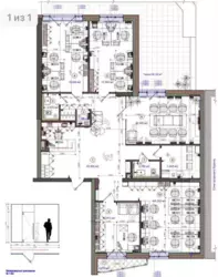
Площа: | 171 м2 |
Поверх: | 1 / 7 |
Додатково: | кондиціонер |
Адреса: Київ, Шевченківський, Ивана Франко ул., 11, м. Золоті ворота
Шевченківський р-н.
вул.Франка
м. Золоті Ворота / м. Університет - 5-7 хв.
Планування: просторі зони, кабінети, з/в, кухня.
Інженерія: центральна система кондиціювання вентиляції, картковий доступ, охоронні, пожежна сигналізація, скс.
Площа: 171 кв.