Офис 139м2, Шевченковский р-н, Малая Житомирская (№ 236-036)
Ціна: 250 000 $

Адреса: Малая Житомирская ул., Київ, Шевченківський, м. Майдан Незалежності
Характеристики
| Ціна: | 250 000 $ |
|---|---|
| № об'єкта: | 236-036 |
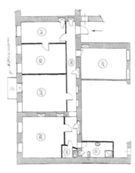
| Тип: | житловий фонд |
| Площа: | 139 м2 |
| Кабінетів: | 5 |
| Поверх: | 2 / 5 |
Опис
Действующий офис с качественным ремонтом, жилой фонд (можно рассмотреть под жилье). 24 рабочих места, 5 кабинетов, санузел, кухня. Вход с фасада, большая часть окон и балкон выходит в сторону фасада. Ремонт с заменой коммуникаций, сделана шумоизоляция, укреплены перекрытия. Идеальное готовое решение под офис.








